


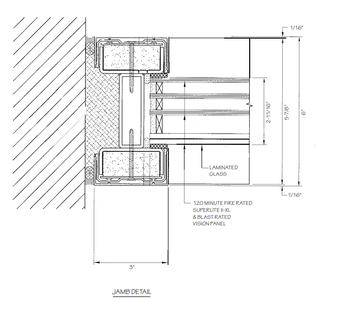
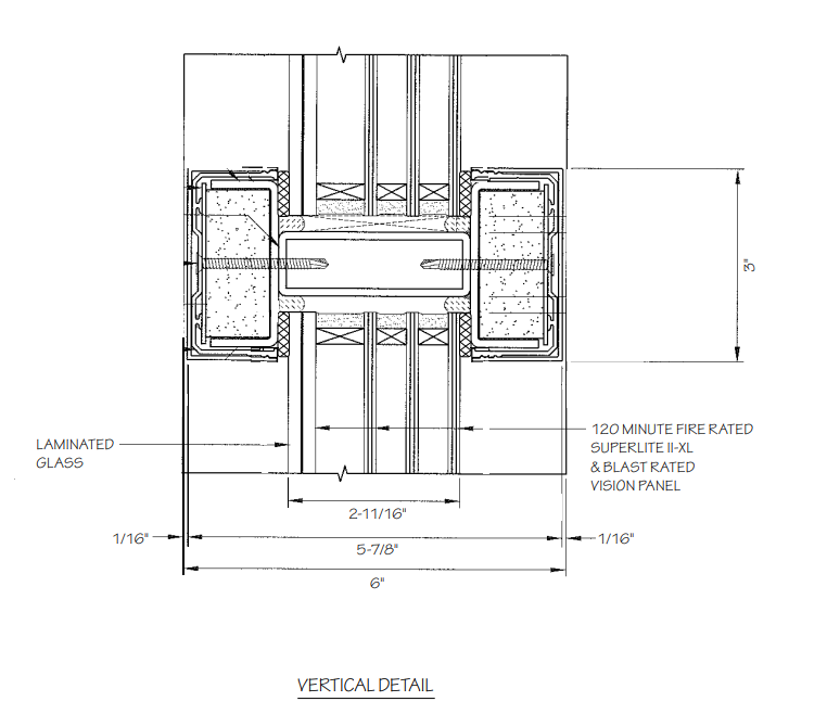
SAFTI FIRSTGPX Blast SystemFire Resistive
- 08 41 13 Aluminum-Framed Entrances & Storefronts
- Aluminum-Clad Solid Wood
Applications

Craig Monroe
Regional Rep (West)

Unlock all product data with a free Acelab account
With your Acelab account, you can:
View performance and comparisons
Download specs, technical docs, and CAD/BIM files
Access expert live chat for this product